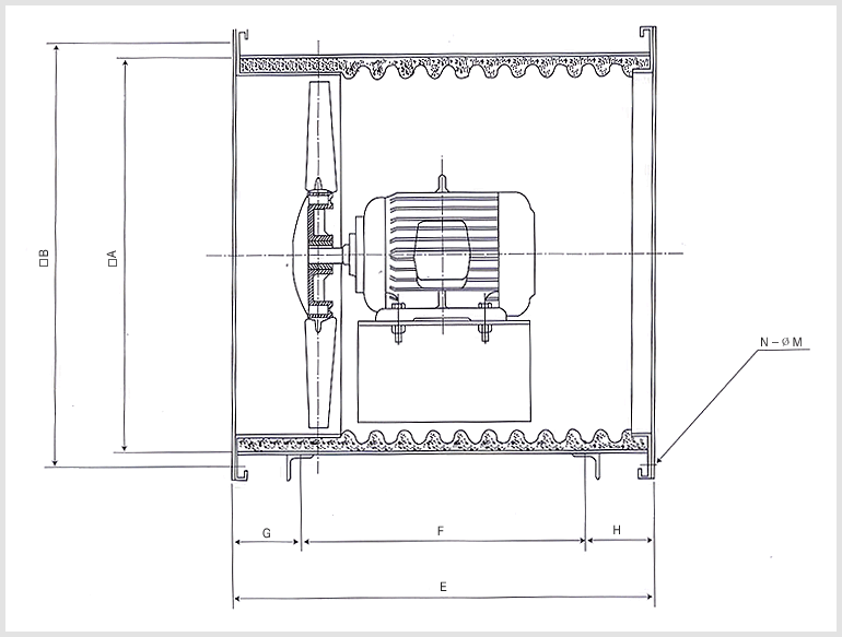
| AXIAL DUCT IN LINE DIMENSION |
 |
| Model No. |
A |
B |
E |
F |
G |
H |
N-ØM |
| DAD-30D |
350 |
390 |
350 |
250 |
50 |
50 |
12-Ø12 |
| DAD-40D |
450 |
440 |
450 |
350 |
50 |
50 |
12-Ø12 |
| DAD-50D |
550 |
590 |
550 |
450 |
50 |
50 |
16-Ø12 |
| DAD-55D |
600 |
640 |
600 |
500 |
50 |
50 |
16-Ø12 |
| DAD-60D |
650 |
690 |
650 |
450 |
100 |
100 |
20-Ø12 |
| DAD-65D |
700 |
740 |
700 |
500 |
100 |
100 |
20-Ø12 |
| DAD-70D |
750 |
790 |
750 |
550 |
100 |
100 |
20-Ø12 |
| DAD-75D |
800 |
840 |
800 |
600 |
100 |
100 |
20-Ø12 |
| DAD-80D |
850 |
890 |
850 |
650 |
100 |
100 |
24-Ø12 |
| DAD-90D |
950 |
990 |
950 |
750 |
100 |
100 |
24-Ø12 |
| DAD-100D |
1050 |
1090 |
1050 |
750 |
150 |
150 |
28-Ø12 |
| DAD-110D |
1150 |
1190 |
1150 |
850 |
150 |
150 |
28-Ø12 |
|
[이 게시물은 최고관리자님에 의해 2020-03-22 20:09:04 생산제품소개에서 이동 됨]
[이 게시물은 최고관리자님에 의해 2020-04-11 22:38:12 생산제품소개에서 이동 됨]