- PREVIOUSAIR FOIL FAN (편흡입)
- NEXT송풍기 사양선정표
본문
Detail view
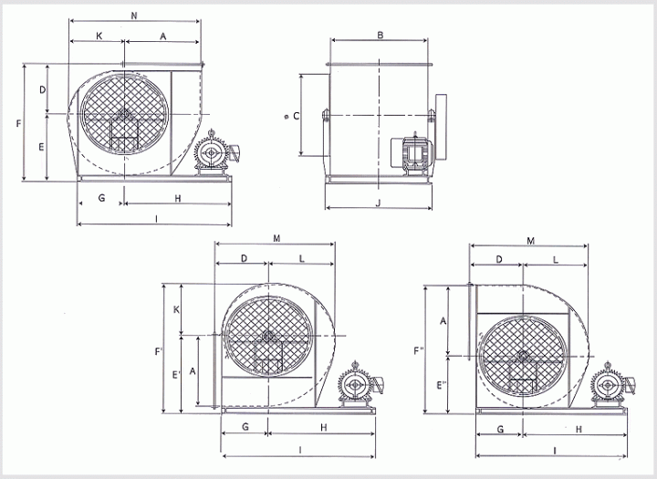
AIR FOIL FAN(양흡입) 표준외형도
AIR FOIL FAN(양흡입)
| SIZE | #2 | #21/2 | #3 | #31/2 | #4 | #41/2 | #5 | #51/2 | #6 | #61/2 | #7 | #8 | #9 | #10 | #11 | #12 | #13 | |
| DISCHARGE | A | 305 | 380 | 455 | 535 | 610 | 685 | 760 | 840 | 915 | 990 | 1065 | 1220 | 1300 | 1525 | 1675 | 1830 | 2000 |
| B | 380 | 470 | 550 | 700 | 810 | 890 | 965 | 1100 | 1225 | 1350 | 1400 | 1600 | 1800 | 2000 | 2200 | 2400 | 2600 | |
| SUCTION | ØC | 320 | 400 | 480 | 560 | 620 | 720 | 800 | 880 | 960 | 1050 | 1120 | 1280 | 1440 | 1600 | 1760 | 1930 | 2180 |
| D | 240 | 290 | 340 | 410 | 450 | 490 | 530 | 590 | 650 | 700 | 740 | 870 | 960 | 1050 | 1150 | 1240 | 1350 | |
| CENTER | E | 295 | 370 | 445 | 515 | 580 | 670 | 725 | 795 | 885 | 945 | 990 | 1150 | 1285 | 1400 | 1550 | 1740 | 1870 |
| E' | 370 | 450 | 535 | 605 | 680 | 780 | 875 | 955 | 1055 | 1130 | 1180 | 1335 | 1440 | 1675 | 2450 | 3220 | 3920 | |
| E" | 270 | 325 | 400 | 450 | 505 | 580 | 635 | 695 | 775 | 830 | 885 | 1020 | 1135 | 1250 | 1360 | 1530 | 1660 | |
| HIGHT | F | 535 | 660 | 775 | 925 | 1030 | 1135 | 1240 | 1385 | 1510 | 1620 | 1730 | 2000 | 2220 | 2450 | 2700 | 2930 | 3170 |
| F' | 599 | 734 | 864 | 1004 | 1134 | 1260 | 1435 | 1575 | 1705 | 1835 | 1965 | 2235 | 2425 | 2800 | 3685 | 4500 | 5330 | |
| F" | 575 | 705 | 845 | 985 | 1115 | 1240 | 1395 | 1535 | 1665 | 1795 | 1950 | 2220 | 2410 | 2775 | 3660 | 4480 | 5310 | |
| G | 222 | 262 | 308 | 348 | 378 | 428 | 470 | 500 | 560 | 605 | 640 | 720 | 815 | 895 | 975 | 1070 | 1195 | |
| H | 628 | 688 | 772 | 852 | 922 | 972 | 1080 | 1160 | 1170 | 1245 | 1400 | 1380 | 1385 | 1455 | 1825 | 2010 | 2135 | |
| I | 850 | 950 | 1080 | 1200 | 1300 | 1400 | 1550 | 1670 | 1730 | 1850 | 2040 | 2200 | 2300 | 2500 | 2800 | 3080 | 3330 | |
| J | 460 | 550 | 650 | 800 | 910 | 970 | 1045 | 1180 | 1325 | 1450 | 1500 | 1730 | 1930 | 2150 | 2350 | 2560 | 2750 | |
| K | 229 | 284 | 339 | 339 | 454 | 505 | 560 | 620 | 675 | 730 | 785 | 900 | 1010 | 1125 | 1235 | 1330 | 1460 | |
| L | 267 | 356 | 397 | 467 | 532 | 595 | 660 | 730 | 795 | 860 | 925 | 980 | 1190 | 1325 | 1450 | 1580 | 1680 | |
| M | 507 | 646 | 737 | 877 | 982 | 1085 | 1190 | 1320 | 1445 | 1650 | 1665 | 1850 | 2150 | 2375 | 2600 | 2820 | 3030 | |
| N | 354 | 664 | 794 | 934 | 1064 | 1190 | 1320 | 1460 | 1590 | 1720 | 1850 | 2120 | 2080 | 2650 | 2910 | 3160 | 3360 | |

[이 게시물은 최고관리자님에 의해 2020-04-11 22:35:41 생산제품소개에서 이동 됨]
